Продажа 3-комнатной квартиры 751 м², 5 / 5 этаж
Россия, Киров, Ленинский район, улица Карла Либкнехта, 67 Центр

11.10.2020

3 200 000,0 ₽
4 261 ₽ за м²
Описание
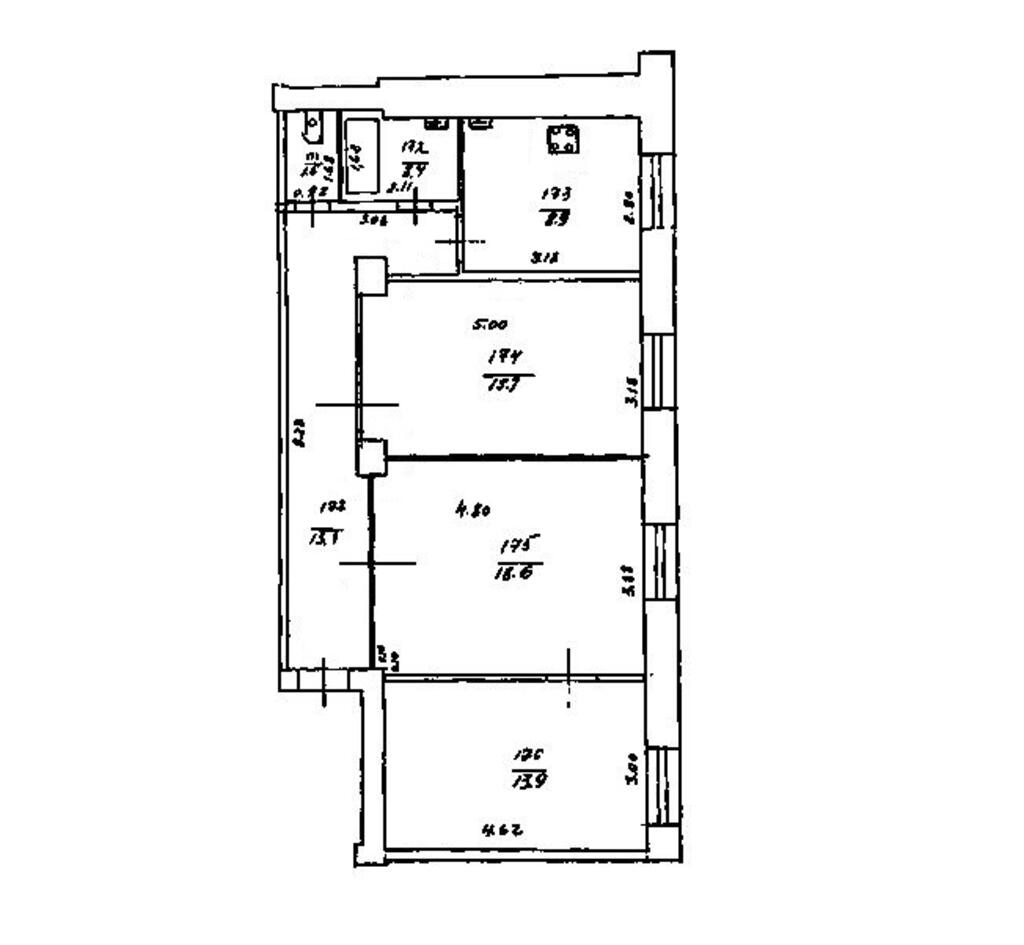
Общая площадь — 751 м²
Площадь кухни — 9 м²
Площадь жилая — 49 м²
Комнат — 3
Этаж — 5 из 5
Вид из окон — На улицу
Жилой фонд
О доме
Год постройки — 1958
Высота потолков — 3
кирпичный
Парковка — Открытая
Продается 3-комнатная квартира на Театральной площади. - Полный габарит со всеми преимуществами: толстые кирпичные стены, просторные комнаты, высокие потолки. - Хорошая планировка: три комнаты 18,6 + 15,7 + 13,9, кухня 8,9, раздельный санузел, высота потолков 2,95. Окна на восток. - Квартира с ремонтом, установлен хороший кухонный гарнитур. Всё работает. Можно заехать и жить. - Поблизости драмтеатр, Вятский Гос.университет, - Рядом походят улицы К. Маркса, Преображенская, Октябрьский проспект. - Документы готовы. - Возможна ипотека.
Расположение